Электрический нагреватель для прямоугольных каналов Shuft EHR 800x500-60
EHR 800x500-60
Доставка
Варианты оплаты
Безопасная сделка
- — Гарантия возврата и обмена
- — Проверка комплектности до оплаты
- — Официальная гарантия и все документы
- — Ваши средства под защитой. Оплата замораживается на счете маркетплейса и перечисляется продавцу только после того, как вы подтвердите получение и исправность климатической техники.
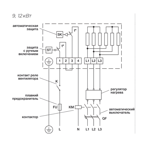
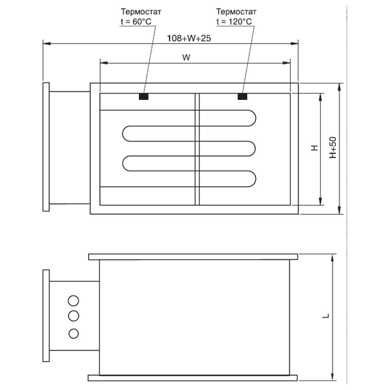
Корпус изготовлен из оцинкованной стали.Фланцевое подсоединение.ТЭНы изготовлены из высококачественной нержавеющей сталиЗащитный термостат с ручным перезапуском (температура отключения 120°С).Защитный термостат с автоматическим перезапуском (температура отключения 60°С)Нагреватели должны устанавливаться таким образом, чтобы воздушный поток был направлен согласно стрелке на корпусе. Воздухонагреватели устанавливаются внутри помещения.Возможна установка как в горизонтальных, так и в вертикальных каналах. При горизонтальной установке не допускается установка электрошкафом вверх или вниз. Расстояние от нагревателя до заслонки, фильтра, отвода и других подобных элементов должно быть не менее двух эквивалентных диаметров присоединительного патрубка.Скорость воздуха в воздухонагревателе должна быть не менее 1,5 м/с. Заказывайте это оборудование на климатическом маркетплейсе conditioner.market. Мы обеспечиваем прозрачность сделки, прямые поставки от вендоров и официальную гарантию завода-изготовителя.
Бренд
SHUFT
Габаритные размеры (ШxВxГ) см.
50/80/50
Габариты с упаковкой, см
50/80/50
Отзывы не найдены
Войдите в учётную запись, чтобы мы могли сообщить вам об ответе


























